NEW

新品家具付きマンション美野島16(KaGood福岡) 605

8.7万円

管理 / 共益費 5,000円

福岡県福岡市博多区美野島3丁目

西鉄大牟田線「西鉄平尾」駅徒歩18分

鹿児島本線「博多」駅徒歩19分

福岡市空港線「博多」駅徒歩17分

賃料
8.7万円
敷金(保証金)
1ヶ月(-)
間取り
1K
向き
北西
所在地
福岡県福岡市博多区美野島3丁目
管理 / 共益費
5,000円
礼金
2ヶ月
専有面積
24.30㎡
築年月
2014年1月(築12年)
交通

西鉄大牟田線西鉄平尾」駅 徒歩18分

鹿児島本線博多」駅 徒歩19分

福岡市空港線博多」駅 徒歩17分

物件の特徴

  • バストイレ別

  • 室内洗濯機置場

  • TVモニタ付きインターホン

  • オートロック

  • エレベーター

  • ネット使用料無料

  • 家具・家電付き

セールスポイント

セキュリティ面は、オートロック・TVインターホンなど充実しているので安心して生活できます。共用部には宅配ボックスが備え付けられているため、急なお出かけや不在の際にも荷物を受け取ることが可能です。暑い夏も寒い冬も、このエアコン付き物件なら安心です。福岡市博多区での住まい探しを当社スタッフがサポート致します。まずはご希望条件などをお申しつけください。それを元にお客様に合ったお住まいをご紹介いたします。

ポイント

担当者のコメント

竹下 和宏

新着情報:新品家具付きマンション美野島16(KaGood福岡)の空室情報ならコチラ。収納はクロゼット・シューズボックスなど豊富なので、衣類や履き物の整理がしやすく便利です。宅配ボックスはカードキーや暗証番号がなければ開けられないので、荷物の盗難防止にもつながります。忙しい朝でも鏡を見ながらサッと身支度を整えられる洗面化粧台があります。セキュリティ面は、オートロック・TVインターホンなど充実しているので、防犯対策もばっちりです。二口コンロが付いた物件です。福岡市博多区エリアや西鉄平尾付近での新生活をお考えなら、お部屋探しは当社にお任せ下さい。当社でなら素敵なお部屋がきっと見つかります。

基本情報

保証金
-
敷引 / 償却
- / -
敷金積み増し
-
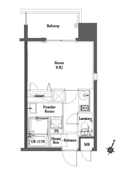
間取り / 詳細
1K
洋室 6.8帖/K
向き
北西
専有面積
24.30㎡
バルコニー
(テラス)面積
-
所在階 / 階建て
6階 / 14階建
建物構造
鉄筋コンクリート
築年月
2014年1月(築12年)
種別
賃貸マンション
保険会社 / 料金
有  ジェイアイ傷害火災保険  15,000円  / 2年
保証会社 / 料金
必加入 / 全保連
初回保証料:月額支払総額50%。更新料(1年毎):10,000円
現況
空家
入居可能時期
即時
その他条件
室内消毒費:1万6,500円  鍵交換代:2万2,000円  えんくらぶ会費:1,100円(月額)  町費:300円(月額)

設備条件

設備条件
  • 保証人不要 / 分譲タイプ / 室内洗濯機置場 / フローリング / バルコニー / プロパンガス / 公営水道 / 公共下水 / エレベーター / 電気有 / 家具・家電付き / ガスコンロ / コンロ2口以上 / 冷蔵庫あり / システムキッチン / バス・トイレ別 / 温水洗浄便座 / シャワー / エアコン / シューズボックス / CATV / ネット使用料無料 / オートロック / TVモニタ付インターホン / 宅配ボックス / 電子レンジ / 洗濯機 / テレビ

その他

契約期間
2年
賃貸区分
一般
更新料
0.5ヶ月(新賃料)
更新事務手数料
-
総戸数
-
特優賃
-
取引態様
仲介
物件番号
99801452
管理コード
-
情報更新日
2026年01月15日
次回更新予定日
2026年01月29日
取扱会社
  • タケショウ住宅株式会社
  • 福岡県福岡市南区玉川町17-6 セレーノ高宮1階
  • TEL:092-511-7654
  • 福岡県知事 (12) 第7178号
  • (公社)福岡県宅地建物取引業協会
    (公社)全国宅地建物取引業保証協会
    (社)福岡中小企業経営者協会
    株式会社FIS(フレックス少額短期保険)
    福岡商工会議所
    (公社)福岡中部法人会 玉川支部
    日本ファイナンシャル・プランナーズ協会 福岡支部
    (公社)福岡貿易会
    (社)全国相続鑑定協会
備考
セキュリティ面は、TVインターホン・オートロックなどを設置しているので安全面でも優れております。お手入れしやすいように工夫されているので綺麗な状態を保ちやすい洗面化粧台が付いています。収納はクロゼット・シューズボックスなど豊富なので、衣類や履き物の整理がしやすく便利です。ぜひご覧いただきたい賃貸物件です。自分のライフスタイルに必要なお住まいをお選びください。お住まい探しをサポートしてまいります。

新品家具付きマンション美野島16(KaGood福岡)の他の部屋

  1. 605

    1K (24.30㎡)

    8.7万円(1.18万円/坪)

  2. 1409

    1K (24.30㎡)

    8.9万円(1.21万円/坪)

近隣の物件

  1. ユートピア博多

    福岡市博多区板付4丁目

    1LDK (49.91㎡)

    7.7万円

  2. Sophia Garden博多

    福岡市博多区比恵町

    3LDK (69.78㎡)

    17.3万円

  3. フラントート

    福岡市博多区麦野6丁目

    1LDK (34.34㎡)

    7万円

  4. プリメイロ

    福岡市博多区半道橋1丁目

    2LDK (53.12㎡)

    12.5万円

新品家具付きマンション美野島16(KaGood福岡)

新品家具付きマンション美野島16(KaGood福岡)

8.7万円

5,000円

1K(24.30㎡)

お気軽にお問い合わせください

LINEからお問い合わせ 無料お問い合わせ

タケショウ住宅株式会社

092-511-7654

1~3月(無休)4~12月(平日9:30~18:00・土曜日10:00~15:00)

(休:1~3月(無休)4~12月(日曜日・祝日休み))